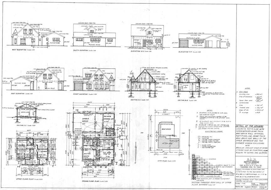
Own House: Plans, sections and elevation