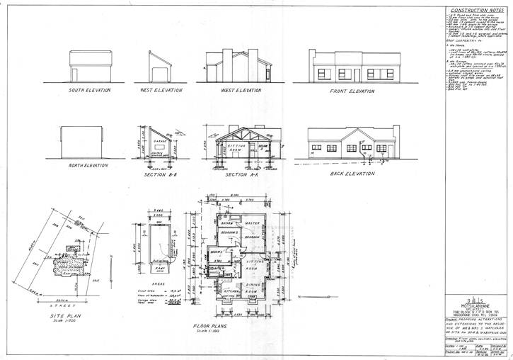
House Matlhare